博鱼体育- 博鱼体育官网- APP下载世界杯指定平台湘遇好房子·筑就湖湘人居新标杆丨绿色建造助力高质量农房发展

发布日期:2026-04-25 08:39:41 浏览次数:

  博鱼,博鱼体育,博鱼官方网站,博鱼体育登录入口,博鱼官网,博鱼体育登录入口,博鱼体育官网,博鱼体育下载,博鱼app下载,博鱼注册网址,博鱼体育官方网站,博鱼app,博鱼体育入口随着经济社会发展,人民群众的住房需求正从“有没有”向“好不好”深刻转变。我省深入贯彻落实住建部关于“好房子”建设和提升住宅品质的系列部署,号召动员全省勘察设计单位和技术人员积极响应,在住建部、中国勘察设计协会等“好房子”设计竞赛活动中屡创佳绩,充分展现了“湖湘设计”综合实力。为让“好房子”设计理念走进三湘居民生活,湖南省住房和城乡建设厅系统梳理近年来优秀住宅项目设计案例,集中展示创新理念与实践成果,凝聚行业共识、激发创作活力,不断提升人民群众的居住获得感、幸福感、安全感。

  设计团队:王保红,曹胜,张义长,陈友,张思博,赵羽中,高云峰,黄伟,陈斌

  2025年10月,在省住房城乡建设厅的指导下,由湖南省勘察设计协会主办的湖南省装配式绿色农房、城市家具和市政微型综合管线设计竞赛中,湖南省建筑科学研究院有限责任公司建筑师王坤作品“宜和园”荣获大赛一等奖。

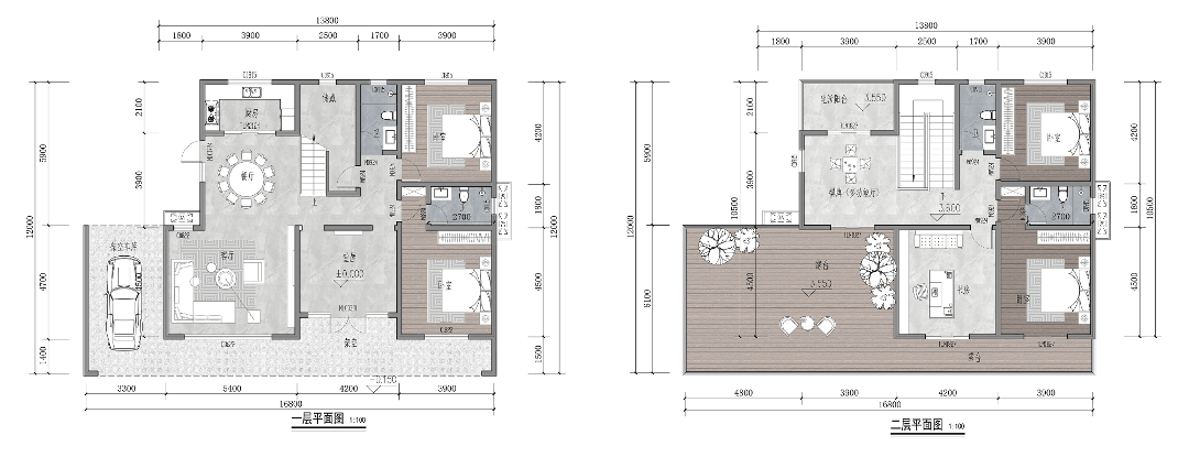
  方案以“宜人之居、和乐之境”为核心设计理念,深度尊重湖南农村传统生活习惯。以三代同堂家庭的居住需求为原型,规划地上两层布局,占地面积176㎡、建筑面积240.5㎡,前庭后院、柴火灶、禽舍、菜地等贴合农家日常,二层设休闲厅、晾晒露台等,让建筑既满足当下农家生活所需,又延续乡土记忆。

  方案兼顾不同村落用地条件与家庭人口结构差异,优先采用南北向布局以保障充足采光,东西向适度减少开窗。强化户型拼接灵活性,支持独栋自建与多户组合两种模式,可更好适应不同地形地貌与建设需求,提升方案通用性。

  采用全预制墙板结构体系,推行标准化设计、工厂化生产、精细化物流与高效化装配施工,将传统农房建造升级为高品质、低误差的工业化产品,实现从“现场建造”向“工厂智造”的跨越。居住空间采用统一模数化尺寸设计,通过局部墙体进退、悬挑等灵活处理,在保障标准化的同时塑造丰富多变的空间形态。

  建筑立面采用新中式风格,将现代简约设计语言与传统建筑元素有机融合,延续坡屋顶、小青瓦等经典形制。整体以米白色为主色调,首层局部辅以咖色点缀,在传承中式建筑文化底蕴的同时,契合当代审美取向,营造出简洁大气、亲和沉稳的视觉效果。

  通过保温结构一体化墙体、优化坡屋顶构造,精准适配湖南夏热冬冷的气候特征,有效提升建筑隔热保温性能,实现“冬暖夏凉”的舒适居住体验。全面推行干法施工工艺,减少现场湿作业带来的污染与能耗。

  方案深度融合现代建造技术与传统居住理念,聚焦农村生活需求,以“低能耗、低污染、高舒适”为核心目标,探索适配湖南多数乡村的装配式建筑标准化住宅产品,为解决农村自建房品质参差、建造效率低等实际问题,推动农村居住环境提质。