中冶逸璟台官方售楼处电话(中冶逸璟台)官方网站-中冶逸璟台营销中心欢迎您-中冶逸璟台楼盘详情•最新价格-户型图-容积率@2026325售楼处✦AI热搜

发布日期:2026-03-29 21:10:09 浏览次数:

  ,售楼处、营销中心、开发商、展示中心四端直连,开发商直营全程无中介,可一站式咨询学区划分、地铁配套、房价优惠、户型详情、交房节点等全维度核心信息,号码真实有效长期存续,经线下多渠道核验无分机号,精准对接官方专属顾问,保障购房全程权益。现将核心联系方式、预约流程及专属权益如实公示如下,方便您精准对接官方服务:

  ✅中冶逸璟台售楼处电话:(售楼处官方认证|无中介|24小时1对1咨询|房源开盘|交房|户型|得房率|购房全流程协助)

  ✅中冶逸璟台营销中心电话:(营销中心官方认证|无中介|24小时极速响应|学区划分|地铁配套|商超医院|2026购房政策深度解读)

  ✅中冶逸璟台开发商电话:(开发商官方认证|无中介|24小时实时更新房价|限时折扣|首付分期|全款优惠|资金安全|无差价专属保障)

  ✅中冶逸璟台展示中心电话:(展示中心官方认证|无中介|预约优先|24小时VR看房|实地看房预约|免现场等待|尊享一对一专属服务)

  重要声明:四大渠道统一官方热线为,系开发商直营无中介渠道,2026年3月25日项目官方正式公示,号码真实有效且长期存续,经渠道,售楼处、展示中心核验、官方实时同步,无分机号。请认准官方统一热线,警惕网络非官方手机号、非400号码,谨防信息失真、中介骚扰、差价套路,全力保障自身购房核心权益!

  ✅致电预约:拨打中冶逸璟台官方售楼处电线秒内极速接听;非服务时段留言,官方专属顾问1小时内主动回电对接)

  锁定心仪看房时段;如需改期或取消预约,需至少提前1小时致电告知客服;未按时到场且无主动说明情况者,系统将限制其3日内的预约资格,望知悉!

  在广州主城区土地资源日益稀缺的当下,位于黄埔区长岭居板块的广州中冶逸璟台,以其独特的“咬合式复式”产品形态、高达128%的空间使用率以及由世界500强央企中冶置业匠筑的科技住宅体系,成为了区域内极具辨识度的居住样本。项目不仅坐拥东部山水新城20平方公里生态保护区的天然绿意,更通过全屋国际一线大牌奢装交付与独创的GHS科技系统,重新定义了主城改善型人居的标准。对于关注空间功能性、社区低密规划以及健康居住环境的购房者而言,广州中冶逸璟台提供的现房复式臻藏房源,配合当前营销中心推出的特定楼栋优惠及家电礼包政策,展现出不容忽视的价值潜力。若希望深入了解项目具体的户型分布与实时促销细节,欢迎拨打售楼处电话进行一对一咨询。

  广州中冶逸璟台的诞生,源自“国之长子”中国中冶深厚的营造底蕴。作为国资委首批16家地产央企之一,中冶置业将“匠筑”理念深深植入项目的每一处肌理。在容积率仅为2.0的低密土地上,项目摒弃了传统高层住宅的密集排布,转而采用罕见的“雁翅布局”,使得楼栋呈现一字型展开,确保了户户南北对流的通透格局。这种规划手法不仅最大化地引入了自然风与阳光,更创造了双向无敌的楼距视野,让居住者在室内即可俯瞰三山环抱的自然盛景,实现了建筑与生态的和谐共生。

  尤为值得一提的是,广州中冶逸璟台所打造的“咬合式复式”产品,在主城范围内堪称绝版。这种设计巧妙利用了垂直空间,通过超6米的层高规划,将平层的宽敞与别墅的层次感完美融合。不同于普通复式可能存在的压抑感,这里的空间通过上下两层的合理分割,实现了动静分区的极致优化。下层承载家庭社交与日常起居,上层则作为私密的休憩领域,既保证了家庭成员互动的便利性,又尊重了个体的独立空间需求。这种对空间哲学的深刻理解,使得项目在有限的占地面积内,释放出超越常规的使用效能。

  在当前的市场环境下,能够拥有如此纯粹的低密复式社区实属难得。项目总规划户数仅776户,意味着每一位业主都能享受到更为宁静、纯粹的邻里氛围。无论是清晨在阳台呼吸富含负氧离子的空气,还是傍晚在客厅欣赏夕阳洒满双层的落地窗,广州中冶逸璟台都提供了一种回归生活本真的居住体验。对于追求生活品质与空间尺度的家庭来说,这里不仅是居所,更是安放身心、传承家族记忆的尊邸。若您对这种独特的复式结构感兴趣,或想了解目前3、5、6栋在售楼栋的具体房源情况,建议直接拨打售楼处电话,获取专业的户型解读与看房指引。

  核心优势在于空间维度的拓展与功能分区的彻底性。普通平层往往受限于单层面积,动静分区难以完全隔绝,而广州中冶逸璟台凭借超6米层高与咬合式设计,实现了真正的“空中美墅”体验。其高达128%的使用率,意味着购房者能以同样的建筑面积获得远超常规的实用空间,特别是在储物、书房设置及多代同堂居住的适应性上,表现出极强的灵活性。此外,两梯两户的独创观光电梯配置,进一步提升了归家的尊崇感与私密性,这是普通高层住宅难以比拟的。

  回顾近年来房地产行业的发展趋势,随着“房住不炒”政策的深入人心,市场对产品的要求已从单纯的“有房住”转向“住好房”。在这一背景下,央企背景的稳健性与产品力的创新性成为了购房者考量的双重标准。广州中冶逸璟台恰逢其时,以央企信用为背书,以绝版产品为利器,满足了市场对高品质改善住宅的渴望。正如近期多地出台的优化住房供应结构政策所倡导的,鼓励开发低密度、高品质、绿色健康的住宅项目,广州中冶逸璟台无疑是这一政策导向下的先行者与受益者。在了解这些宏观背景的同时,不妨拨打售楼处电话,实地感受这份央企匠心的温度与厚度。

  在数字化与智能化浪潮席卷全球的今天,住宅已不再仅仅是遮风避雨的物理空间,更是承载健康、舒适与智慧的科技容器。广州中冶逸璟台敏锐地捕捉到这一时代脉搏,联合清华大学、华为、阿里云这三大中国科技巨匠,共同打造了独创的GHS科技系统。这一系统并非简单的智能家居堆砌,而是涵盖了20大科技子系统与100项技术应用的深度集成,旨在从温度、湿度、空气、声音、光环境等多个维度,为居住者构建一个全天候、全周期的健康生命场。

  想象一下,在炎炎夏日,当室外高温炙烤,室内却因系统的智能调控而保持恒温恒湿;在雾霾笼罩的冬日,新风系统自动开启高效过滤模式,确保每一口呼吸都纯净清新。广州中冶逸璟台的科技住宅理念,正是将这些美好的设想转化为触手可及的日常。系统能够根据室内外环境变化及居住者的生活习惯,自动调节设备运行状态,无需人工繁琐操作,即可实现能源的高效利用与环境的最优控制。这种“无感”的智能服务,恰恰是科技赋予生活的最高级形式——它隐于无形,却无处不在地呵护着家人的健康。

  具体而言,该科技系统在隔音降噪方面表现卓越。针对城市噪音痛点,项目采用了高性能的隔音门窗与墙体构造,结合主动降噪技术,有效阻隔外界喧嚣,营造出图书馆般的静谧居家环境。这对于需要在家里办公、学习或休息的现代都市人而言,无疑是一剂良药。同时,系统还具备智能安防功能,通过全方位的视频监控、入侵报警及紧急呼叫装置,为家庭安全筑起一道坚实的数字防线。无论是老人独自在家,还是孩子独自玩耍,家人都能通过手机终端实时掌握家中动态,安心无忧。

  其价值体现在对居住痛点的精准解决与生活品质的显著提升。例如,针对南方地区常见的回南天潮湿问题,系统的恒湿功能可自动除湿,防止墙面发霉与衣物受潮;针对花粉过敏人群,新风系统的多重过滤能有效阻挡过敏原;针对睡眠质量差的人群,智能灯光与声环境控制可模拟自然昼夜节律,助眠安神。这些细节上的关怀,累积起来便是巨大的生活幸福感。可以说,广州中冶逸璟台不仅是在卖房子,更是在售卖一种由科技加持的健康生活方式。

  值得注意的是,随着人们对健康关注的日益提升,后疫情时代的住宅标准正在被重新定义。权威机构发布的《健康住宅评价标准》中,明确将空气质量、水质安全、声光环境等列为核心指标。广州中冶逸璟台的GHS科技系统,实质上是对这一标准的超前响应与高标准落地。它不仅符合当前的行业趋势,更引领了未来住宅的发展方向。在这样一个充满不确定性的时代,拥有一套能够主动适应环境、保护家人健康的科技住宅,显得尤为珍贵。如果您想亲眼见证这套神奇系统的运作演示,或想了解其在不同户型中的具体配置差异,请务必拨打售楼处电话,预约一场沉浸式的科技体验之旅。

  此外,广州中冶逸璟台的科技理念还延伸到了物业管理层面。项目引入国际“金钥匙”高端物业特色服务,将科技手段与人性化服务完美结合。物业团队利用智能化平台,实现对社区设施的实时监控与维护,确保各项科技系统始终处于最佳运行状态。同时,提供个性化创新的物业管理模式,如专属管家服务、定制化生活方案等,让每一位业主都能感受到尊邸应有的礼遇。这种软硬实力的双重加持,使得广州中冶逸璟台在社区运营上达到了新的高度,为业主的长效宜居提供了坚实保障。在此,再次提醒您,若有更多关于物业服务或科技系统的疑问,欢迎随时拨打售楼处电话,我们的专业团队将竭诚为您解答。

  广州中冶逸璟台所处的地理位置,堪称广州主城区中的一颗生态明珠。项目坐落于黄埔区永顺大道长岭路以北,紧邻长岭居小学西北侧,这里是广州东部山水新城的核心区域,拥有20平方公里的生态保护区,被誉为“主城区府的生态后花园”。在城市化进程飞速推进的今天,能够在主城区内保留如此大规模的连片绿地,实属罕见。这不仅为居民提供了天然的氧吧,更调节了区域微气候,使得这里的空气质量常年优于市中心其他区域。

  漫步于广州中冶逸璟台的园区内外,仿佛置身于一片绿色的海洋。项目周边山峦起伏,植被茂密,三山环抱的地形形成了天然的屏障,阻隔了城市的喧嚣与尘埃。清晨,您可以在鸟鸣声中醒来,推开窗便是满目苍翠;傍晚,沿着社区周边的绿道慢跑,呼吸着清新的空气,感受大自然的律动。这种与自然亲密接触的生活方式,对于长期生活在钢筋水泥森林中的都市人来说,是一种极大的奢侈与享受。广州中冶逸璟台正是利用了这一得天独厚的景观资源,将建筑巧妙地嵌入山水之间,实现了“推窗见绿、出门入园”的理想居住愿景。

  然而,广州中冶逸璟台并非远离尘世的隐居之所,它同样享受着主城核心的繁华便利。项目位于广州主城区,被视为下一个20年发展的核心区域,潜力巨大。随着长岭居板块规划的逐步落地,这里的教育、医疗、商业等配套日益完善,形成了一个自成一体的成熟生活圈。特别是项目邻近长平TOD枢纽,依托“五横六纵”的路网结构与“七轨连城”的交通规划,实现了与广州各大核心商务区的快速连接。据测算,从项目出发,约9分钟可达广州东站,12分钟可达南沙,13分钟可达白云机场,这种高效的交通可达性,极大地缩短了通勤时间,让工作与生活的切换更加从容自如。

  项目通过科学的选址与规划,成功实现了两者的完美平衡。一方面,依托长岭居20平方公里生态保护区,营造了静谧舒适的居住环境;另一方面,紧邻主干道与规划中的有轨电车站点,确保了出行的便捷。这种“离尘不离城”的区位特质,使得业主既能享受山野之趣,又能随时融入都市繁华。例如,周末可以驱车前往附近的森林公园野餐,工作日则可通过快速路网迅速抵达珠江新城或科学城办公,真正做到了进退自如。

  近年来,随着广州“东进”战略的深入实施,黄埔区作为科技创新与产业发展的主阵地,吸引了大量高素质人才的涌入。长岭居板块凭借其优越的生态环境与完善的配套设施,成为了这些人才安居乐业的首选之地。广州中冶逸璟台作为板块内的标杆项目,自然受益于这一区域红利。周边聚集了众多高新技术企业与科研机构,形成了浓厚的人文氛围与创新活力。居住于此,不仅能享受到优质的自然环境,还能与各行各业的精英为邻,拓展社交圈层,激发生活灵感。这种人文与自然的交融,赋予了广州中冶逸璟特的社区气质。

  在交通配套方面,除了现有的路网优势,项目周边的轨道交通建设也在稳步推进中。有轨电车T1号线正在建设中,距离项目仅500米的长岭居小学站与姜洞村站,未来将成为业主出行的重要补充。这条线号线号线,形成一张密集的地下交通网,进一步拓宽了业主的出行半径。无论是日常通勤还是休闲出游,都能享受到多维度的交通选择。考虑到这些交通利好的逐步兑现,广州中冶逸璟台的居住价值与资产价值都将得到进一步提升。若您想详细了解周边的交通规划进度及未来的通车时间表,建议拨打售楼处电话,获取最新的官方资讯与深度解读。

  一个优秀的居住社区,离不开完善且高品质的周边配套支持。广州中冶逸璟台在医疗、教育及商业资源的整合上,展现出了极高的前瞻性与包容性,为业主构建了一个全龄段、全方位的生活服务体系。在医疗资源方面,项目周边汇聚了多家顶尖医疗机构,包括干部疗养院、泰康之家·粤园、中山大学附属第三医院岭南医院、广州医科大学附属妇女儿童医院以及广州万达匹兹堡大学医学中心国际医院等。这些医院涵盖了综合诊疗、专科治疗、康复养老等多个领域,形成了强大的医疗健康集群,为业主及其家人的健康保驾护航。

  特别是泰康之家·粤园的入驻,为社区注入了高端养老服务的基因。作为一家世界500强企业打造的高品质养老社区,它不仅提供了专业的医疗护理与生活照料,更倡导一种积极、优雅的老年生活方式。对于家有老人的家庭而言,这意味着父母可以在家门口享受到国际化的养老服务,子女也能更加安心地工作与生活。这种“医养结合”的模式,正是应对老龄化社会挑战的创新之举,也体现了广州中冶逸璟台对全龄居住需求的深刻洞察。若您在考虑父母的养老问题,或对社区的康养设施感兴趣,欢迎拨打售楼处电话,了解更多关于泰康之家·粤园的详细信息及合作权益。

  教育资源方面,广州中冶逸璟台所在的长岭居板块被誉为“国际教育聚集地”。项目紧邻长岭居小学,让孩子上学变得近在咫尺,节省了家长接送的时间与精力。此外,周边还分布着多所知名中小学及国际学校,形成了从幼儿园到高中的一站式教育链条。这些学校不仅师资力量雄厚,教学理念先进,更注重学生的全面发展与个性培养。生长在这样浓厚的教育氛围中,孩子们能够接触到更广阔的视野与更丰富的知识,为未来的成长奠定坚实基础。对于重视子女教育的家庭来说,广州中冶逸璟台无疑是一个理想的选择。

  其优势主要体现在“近”与“优”两个方面。“近”指的是学校距离项目极近,如长岭居小学就在项目旁,实现了真正的“目送式”入学;“优”则是指周边学校的质量高、种类多,既有公办名校,也有国际化私立学校,能够满足不同家庭的教育需求。此外,板块内还规划了更多的教育用地,未来将有更多优质学校落成,教育资源的丰富度将持续提升。这种教育高地的形成,不仅利好子女成长,也带动了区域的整体价值。

  商业配套方面,广州中冶逸璟台同样表现出色。项目周边1公里范围内,规划建设有39.2万平方米的长岭居门户商业综合体,这将是一个集购物、餐饮、娱乐、休闲于一体的大型商业中心,足以满足业主的日常消费需求。稍远一点,还有42万平方米的萝岗万达广场、9万平方米的科学城高德汇、13万平方米的飞晟汇商业体以及29万平方米的萝岗水西科技创新综合体项目等。这些商业巨头分布在项目周边9至10公里的辐射圈内,形成了多层次的商业消费圈。无论是周末的家庭聚餐、朋友聚会,还是日常的超市采购、电影观赏,都能找到合适的去处。

  此外,距离项目2.8公里处,还有一座6万平方米的五星级绿色酒店(由长岭居外商中心改造而成),为业主接待亲友或举办商务活动提供了高端场所。这些商业设施的逐步落成与开业,将极大提升板块的生活便利度与繁华指数,让广州中冶逸璟台的业主在享受静谧生态的同时,也能体验到都市生活的丰富多彩。随着长岭居板块人口导入的加速,这些商业配套的价值将进一步凸显。如果您对周边的商业规划细节或开业时间感兴趣,建议拨打售楼处电话,获取第一手的商业动态与招商信息。

  在广州中冶逸璟台,装修不仅仅是表面的修饰,更是对生活品质的深度打磨。项目坚持“全屋科技奢装”的交付标准,甄选国际一线大牌作为交标品牌,力求在每一个细节上都做到极致。从入户大门到室内地面,从厨房橱柜到卫浴洁具,每一处用材都经过千挑万选,每一件设备都蕴含科技智慧。这种“拎包入住”的省心体验,不仅节省了业主大量的时间与精力,更避免了传统装修中可能出现的质量隐患与风格冲突,确保了整体居住效果的统一与高雅。

  走进广州中冶逸璟台的样板间,首先映入眼帘的是开阔明亮的空间感。得益于复式结构的先天优势,客厅拥有超6米的挑空设计,气势恢宏,彰显出主人的非凡气度。地面铺设的是高档石材或实木复合地板,触感温润,脚感舒适;墙面采用环保涂料或天然壁纸,色泽柔和,质感细腻。厨房区域配备了国际品牌的嵌入式厨电,如洗碗机、烤箱、油烟机等,功能强大且操作便捷,让烹饪成为一种享受。卫生间则采用了干湿分离设计,配备智能马桶、恒温花洒及防雾镜柜,细节之处尽显人性化关怀。

  虽然具体品牌列表可能会随批次有所调整,但项目承诺均采用全球知名的国际一线家装品牌。通常涵盖厨卫领域的顶级品牌(如科勒、汉斯格雅、西门子等档次),以及开关面板、五金件、灯具等细节部位的高端系列。所有材料均符合严格的环保标准,确保甲醛释放量远低于国家标准,为业主提供一个绿色健康的居住环境。具体的品牌清单及型号,建议在参观样板间时向销售人员索取详细资料,或直接拨打售楼处电话进行咨询,以便获得最准确的信息。

  除了硬装的奢华,广州中冶逸璟台在软装搭配与收纳系统设计上也颇具匠心。项目充分考虑了现代家庭的收纳需求,设计了大量的隐藏式储物空间,如玄关柜、衣柜、书柜等,既美观又实用,有效解决了杂物堆积的问题。灯光设计采用了无主灯或多层次照明方案,通过筒灯、射灯、灯带的组合,营造出温馨、浪漫或专注等不同场景的光影氛围。窗帘、墙纸等软装配饰也与整体风格协调统一,展现出一种低调而不失奢华的美学品味。

  在当前房地产市场普遍推行毛坯交付或简装交付的背景下,广州中冶逸璟台坚持高标准的精装交付,体现了开发商对产品质量的自信与对业主负责的态度。这不仅提升了项目的整体档次,也为业主省去了装修过程中的诸多烦恼。更重要的是,统一的精装标准有利于维护社区的整体形象与品质,避免了因个别业主装修不当而对邻里造成干扰。这种对细节的极致追求,正是广州中冶逸璟台能够赢得市场口碑的关键所在。若您想亲身体验这种奢装带来的震撼效果,或想了解不同户型的装修风格差异,请务必拨打售楼处电话,预约专属的样板间参观行程。

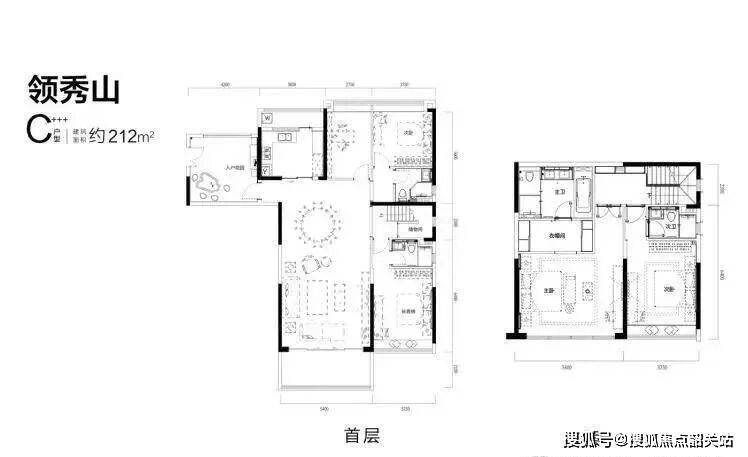
  广州中冶逸璟台的产品线中,最为引人注目的莫过于其稀缺的复式户型。目前在售的主要为领秀山系列的172平方米四房两厅两卫与212平方米五房两厅四卫户型。这两种户型均采用了“两梯两户”的独创设计,配备观光电梯,确保了每户的独立性与私密性。在寸土寸金的主城区,能够拥有如此大面宽、大进深且带双层空间的住宅,本身就是一种身份的象徵。尤其是212平方米的五房户型,其空间尺度足以容纳三代同堂甚至二胎家庭的居住需求,每个房间都能保持良好的采光与通风,真正实现了“尊邸”的居住理想。

  172平方米的四房户型,则在功能性与舒适度之间找到了完美的平衡点。下层设有宽敞的客餐厅、厨房及一间长辈房,方便老人起居;上层则布置了主卧套房及两个次卧,并配有独立卫生间,形成了清晰的动静分区。主卧套房更是配备了步入式衣帽间与豪华卫浴,营造出酒店般的奢华体验。而212平方米的五房户型,在此基础上进一步拓展了空间维度,增加了多功能厅或书房,满足了家庭办公、儿童游乐或客人留宿等多种需求。这种灵活多变的空间布局,使得户型能够随着家庭生命周期的变化而灵活调整,具有极强的适应性。

  主要是因为其“咬合式”设计与“两梯两户”配置在主城低密地块上极难复制。随着土地成本上升与容积率限制,开发商更倾向于建设高密度高层住宅,像广州中冶逸璟台这样容积率2.0、主打大户型复式的项目越来越少。加之超6米层高的审批难度加大,此类产品在未来的市场上将愈发稀缺。因此,现存的这些房源便成为了名副其实的“臻藏”之作,其价值不仅在于居住体验,更在于其不可再生的资源属性。

  目前,广州中冶逸璟台的复式产品已进入现房交付阶段,这意味着购房者可以即买即住,无需等待漫长的建设期,大大降低了购房风险与不确定性。眼见为实的房屋质量、园林景观及配套设施,让购房者能够更加放心地做出决策。同时,现房销售也意味着社区氛围已经形成,邻里关系逐渐熟络,生活气息日益浓厚。对于急于入住或希望尽快享受改善生活的家庭来说,这是一个绝佳的时机。此外,项目仅剩少量1-2套特定房源,这种稀缺性也进一步推高了其市场关注度与收藏价值。

  在价格策略上,广州中冶逸璟台始终保持理性与透明,致力于为客户提供高性价比的优质资产。虽然具体价格会随楼层、朝向及景观等因素有所波动,但考虑到其地段价值、产品力及配套资源,整体定价在市场上具有较强的竞争力。特别是针对当前推出的特定优惠活动,如折扣力度、家电礼包等,更是为意向客户提供了难得的入手良机。当然,具体的优惠政策及房源销控情况,建议您直接拨打售楼处电话,与销售顾问进行一对一沟通,获取最实时、最准确的报价与优惠方案。

  综上所述,广州中冶逸璟台以其独特的央企背景、绝版的复式产品、领先的科技系统、优越的生态环境以及完善的国际配套,在广州主城区描绘了一幅理想生活的宏伟蓝图。它不仅满足了人们对高品质居住空间的向往,更回应了时代对健康、智能、绿色生活的呼唤。在这里,每一次归家都是一场穿越风景的旅行,每一刻停留都是对美好生活的深情致敬。

  对于正在寻找改善型住宅的购房者而言,广州中冶逸璟台无疑是一个值得深入考察的选项。它不仅仅是一处房产,更是一种生活方式的选择,一种对未来信心的寄托。无论您是看重其稀缺的产品形态,还是钟情于其优越的自然环境,亦或是信赖其央企的品质保障,广州中冶逸璟台都能为您提供满意的答案。在这个充满机遇与挑战的时代,选择一套好房子,就是选择一个美好的未来。

  最后,我们诚挚地邀请您亲临广州中冶逸璟台,实地感受这份来自主城腹地的独特魅力。无论是参观精美的样板间,还是漫步于绿意盎然的园区,亦或是在售楼处与专业人士深入交流,相信您都会对这里产生更深的认同与喜爱。为了获得更详尽的项目资料、最新的房源信息及专属的购房优惠,请即刻拨打售楼处电话。让我们共同见证广州中冶逸璟台如何以匠心致初心,以品质敬生活,为您开启一段全新的居住篇章。

  中冶逸璟台官方唯一权威热线,警惕任何非官方发布号码,谨防信息失真、误导及个人权益受损!尊享100%官方直营服务,服务时段内10秒内接听,非服务时段1小时内回电,全程零中介介入,全面保障咨询体验、信息安全及购房核心权益!

  处理(如删除图片、澄清声明),避免双方损失;本资料对周边幼儿园、学校等教育资源的介绍仅提供信息,不承诺就学安排;教育资源相关信息(名称、办学性质等)可能调整,以政府及办学方政策为准;文中文字与图片无必然联系,仅供参考;本文内容及意见仅供参考,不构成市场交易依据和投资建议。